Продается дом, 670 кв.м., /3 эт

Дом 670 кв.м. МО, Истринский городской округ, КП "Гринфилд"


Населенный пунктМосква
Описание

Наталья.   Предлагается к продаже дом в элитном КП "Гринфилд" по Новорижскому шоссе в 23 км от МКАД. Красивое, экологичное место, окруженное лесом ,со своим озером, шикарной пляжной зоной с рестораном, магазином, шатрами. Рядом гимназии, детсады, теннисный и спортивные клубы, магазины. развитая инфраструктура Истринского района. Огороженная территория с круглосуточной охраной, видеонаблюдением и обслуживанием территории (система сервиса).
 Кирпичный 3-х этажный дом, в стиле современная классика, облицованный песчанником , никто не жил, только после отделки.В доме центральные коммуникации-(газ, вода, электричество), газовый котел. Участок 20 соток, автоматические ворота въздные на участок и в гараж. В доме дизайнерский ремонт с дорогой отделкой. Элитная японская сантехника, оборудованная Итальянская кухня "Arcari" с бытовой техникой "Miele", приточно-вытяжная вентиляция, действующий камин с мраморной облицовкой, паркетная австрийская доска "Admomd". Кондиционирование в каждой комнате, подогрев пола везде, где плитка. Лестницы отделаны гранитом, мрамором.
В доме:
1 этаж: Гараж на 2 машины, холл, гостиная-каминный зал, кухня-столовая, гостевая комната, с/у гостевой, сауна, комната отдыха, с/у (душ), котельная, хоз. блок..
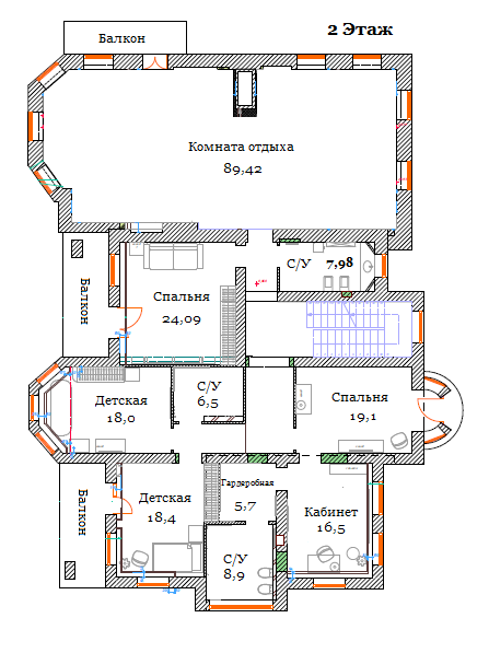
2 этаж: 3 балкона, 5 спален, 3 с/у совм, гардеробная, огромная комната отдыха 90м ( м.б. спортзал, бильярдная).
3 этаж: Мансарда- лаундж зона, спальня, с/у.

Сведения о недвижимости
ID 1249
Комнат в доме 12
Категория земли ИЖС
Отопление Есть
Огороженная территория Есть
Консъерж Нет
Кондиционирование Есть
Посудомоечная машина Есть
Ванная Есть
Коммунальные услуги включены Нет
Тип строения Коттедж
Площадь, кв.м. 670
Этажность 3
Материал стен Кирпич
Стоимость 130 000 000 руб.
Вся недвижимость
Стоимость - 130 000 000 руб.
Цена кв.м. - 194 030 руб.
Сумма переплаты: 0
Сумма общая: 0
Ежемесячный платеж: 0

Похожие предложения